window.filterProjectsByAuthorSlug = (allProjects, authorSlug) => { return allProjects.filter(project => project["field_6018279"] === authorSlug); };

Vancouver BC
construction completed 2013
West Fraser Collingwood Development LTD.
Wojciech Grzybowicz ARCH. AIBC / Yuri Afanasiev Intern ARCH. M. ARCH. / Krzysztof Durkowski B.T.

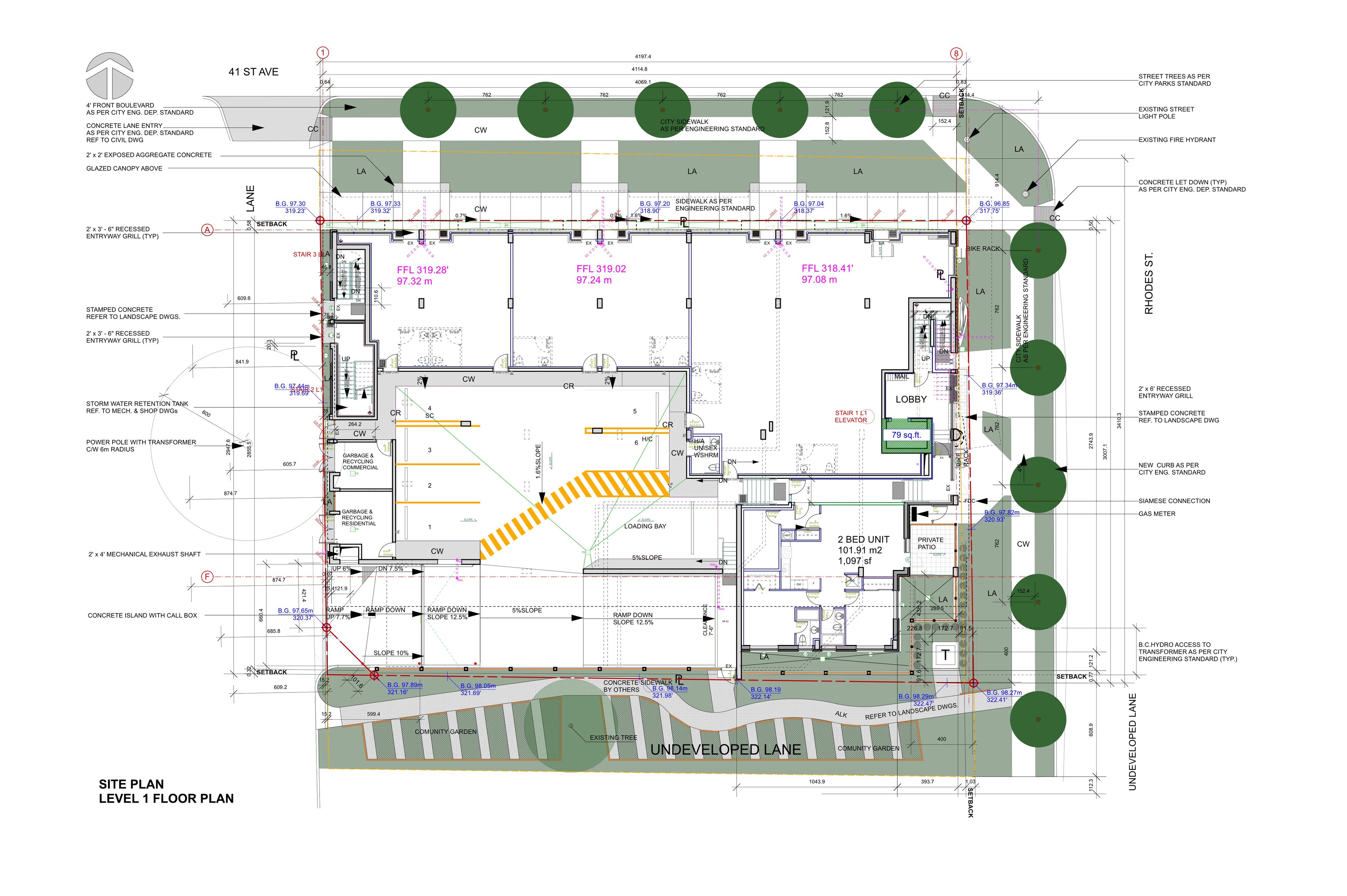
Four storey building is located on a Cornerlot at 41 St Avenue and Rhodes Street. Ground floor level contains commercial units with enclosed parking behind, and lobby with access to residential floors above and underground parking below. Residential floors have been designed as affordable one and two bedroom units. At top level two bedroom units received access to the large open roof deck with southern exposure. Back lane was converted into community garden.


The exhibition and website were created under the patronage of the Consulate General of the Republic of Poland in Vancouver.
honorary partners